Nos modèles de maisons personnalisables

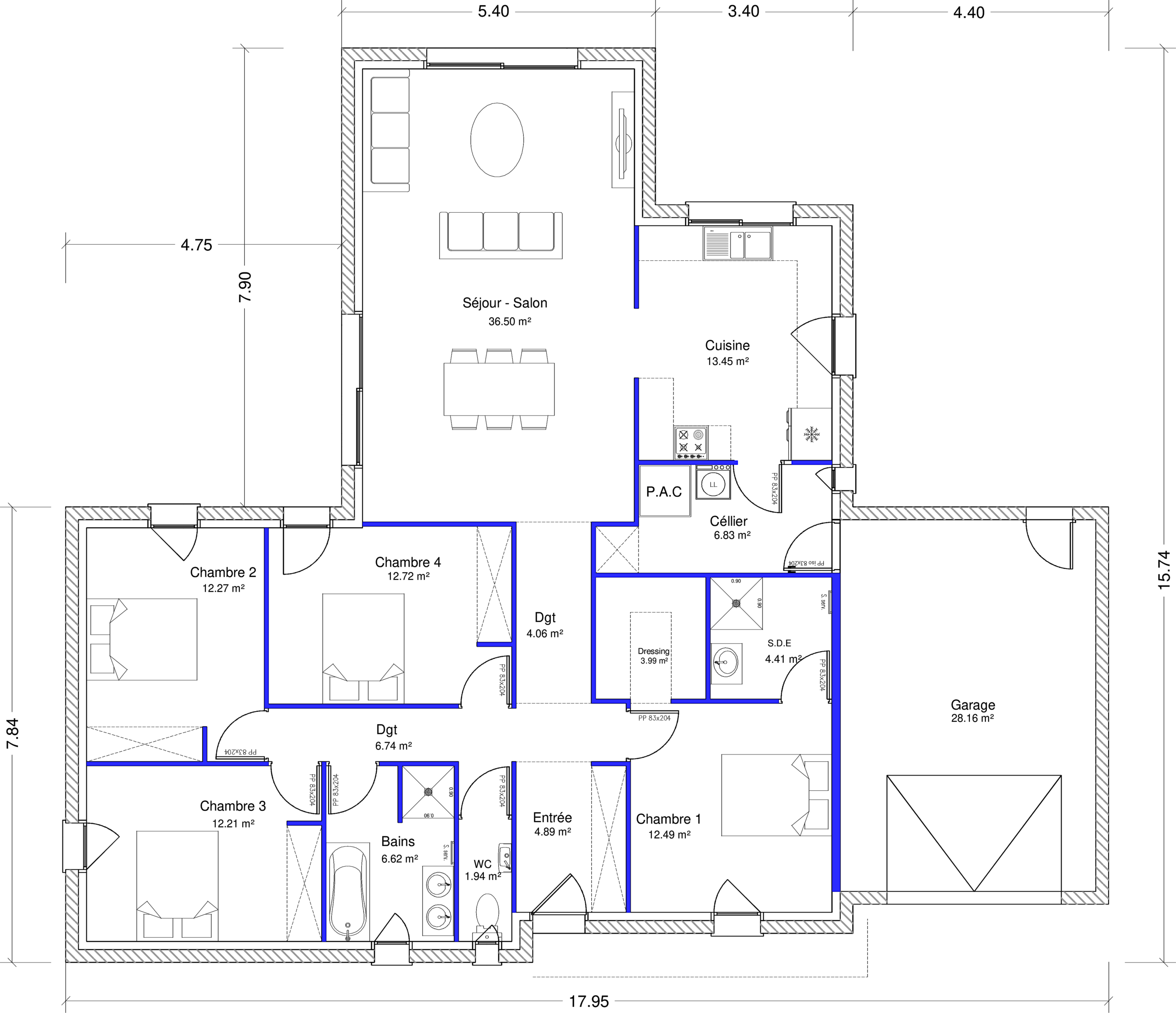
Maison Mauve


139.12 m² - 4 chambres - 1 garage
Rez-de-chaussée
  • Espace de vie
    36.50 m2
  • Cuisine
    13.45 m2
  • Cellier
    6.83 m2
  • Salle d'eau
    4.41 m2
  • Dégagement
    4.06 m2
  • Entrée
    4.89 m2
  • Chambre 1
    12.49 m2
  • Dressing
    3.99 m2
  • WC
    1.94 m2
  • Dégagement
    6.74 m2
  • Salle de bains
    6.62 m2
  • Chambre 2
    12.27 m2
  • Chambre 3
    12.21 m2
  • Chambre 4
    12.72 m2
  • Total rdc :
    139,12 m2

Modulez, personnalisez !

Exemples d'options de finitions Exemples d'options de finitions :
  • Choix de l'enduit, de la couleur de vos façades, murs en pierre ou en briques
  • Choix de la toiture : charpente fermette ou traditionnelle et couverture en ardoises ou tuiles
  • Volets roulants intégrés ou apparents, électriques ou manuels
  • Menuiseries en pvc blanc, couleur ou alu
  • Mode de chauffage au choix : électricité ou gaz, poêle, pompe à chaleur, plancher chauffant, chaudière...
  • Cuisine fermée plutôt qu'ouverte sur le séjour
  • Le choix des matériaux : porte d'entrée, porte du garage, portes intérieures, carrelages, verrières, etc.
  • Choix des sanitaires : douches ou baignoires, WC suspendus ou classiques
  • 2 ou 3 chambres, voire plus
  • Un WC supplémentaire dans la salle de bains
  • Un placard ou un dressing dans une chambre
  • Le confort d'une domotique
  • ...
Exemples d'options de construction Exemples d'options de construction :
  • Ajouter une chambre
  • Agrandir la superficie du salon ou de la salle de bains
  • Ajouter un garage
  • Choisir l'orientation de la maison
  • ...

Cet éventail de choix proposé respecte les obligations du PLU ou PLUi de la commune ou du règlement du lotissement, ainsi que la règlementation environnementale sur la construction neuve et les normes de la RE2020.

Envie de construire
ce modèle ?


    J'ai bien pris connaissance de La politique de collecte des données*